top of page
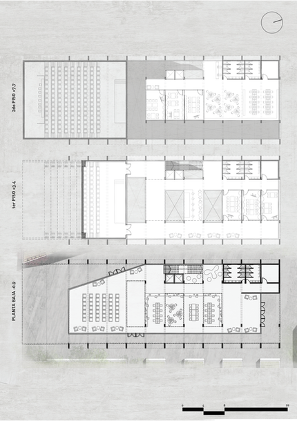
FORO 31
Location: Villa 31, Buenos Aires, Argentina - (Most populated informal settlement of the city)
Mixed use building + Urban planning: Community Centre, social housing, government offices, commercial shops & public square
Lot: 12,000 m2 / 129,170 sqft
Area built: 7,000 m2 / 75,350 sqft
Year: 2017
Individual project

bottom of page


















